Региональные филиалы компании Агромаш:
Ванна твороженная
Ванна твороженная
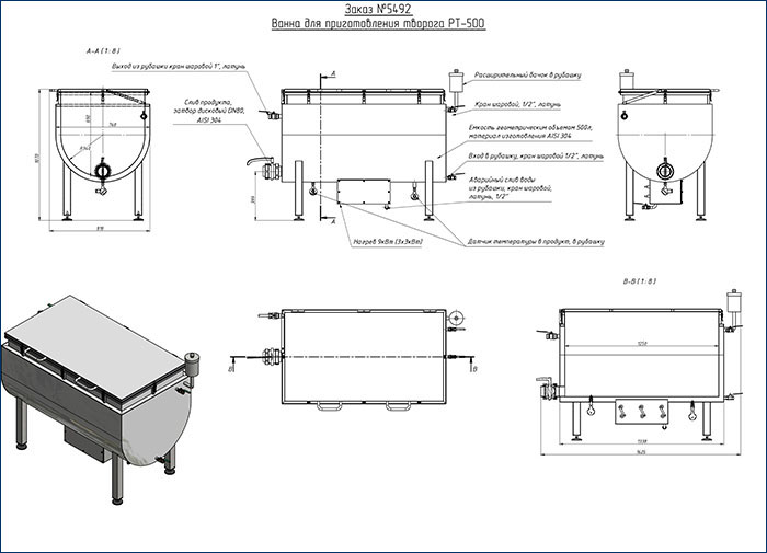
Ванна творожная применяется в молочной промышленности и предназначена для подогрева нормализованного молока до температуры внесения закваски, сквашивания молока в процессе образования, охлаждения творожного сгустка (калье).
Принцир работы твороженной ванныПосле заполнения ванны молоком и его заквашивания в рубашку подают горячую воду для нагрева молока и поддержания необходимой температуры сквашивания. По окончании процесса сквашивания горячую воду спускают и подают холодную для охлаждения сгустка. Через шиберный кран готовым сгустком наполняют мешки и укладывают рядами в ванну самопрессования на решетки. |
![]() |
|
![]() |
Устройство твороженой ванны:
Творожная ванна имеет рабочий корпус полуцилиндрической формы, теплообменную рубашку. С левой стороны ванна имеет штуцер для выпуска творога с крышкой и штуцер для слива воды из теплообменной рубашки. С правой стороны сверху находиться штуцер, предназначенный для перелива воды при заполнении теплообменной рубашки или при образовании конденсата в процессе нагревания. Также через этот штуцер происходит слив воды при охлаждении ванны: проточной - в канализацию ледяной - в канализацию или возврат в систему ледяной воды.
Ванна твороженная установлена на ножках, которые обеспечивают уклон ванны в сторону выпускного штуцера. Снизу к ванне подведен коллектор для подачи пара или горячей воды в теплообменную рубашку при сквашивании молока и холодной или ледяной воды при охлаждения сгустка - калье. В коллекторе предусмотрена система его очистки в случае загрязнения.
Ванна твороженная. Технические характеристики
![]() |
Рабочая вместимость, м3 0,25 1,2 2,5 50,0 10,0 Теплоноситель - горячая вода Хладоноситель - хоз. питьевая вода
|
1. Ванна твороженная с площадкой обслуживания. 2. Ванна самопрессования. |
|
Ванна самопрессования творога - 200л-1500л
Маслоизготовитель применяется на молочных производствах как основной элемент в линиях по производству сливочного масла методом периодического сбивания. Масло в маслоизготовителях получается в результате обработки сливок 35% жирности. От маслобоек отличаются большим геометрическим объемом и возможностью автоматического управления технологическим процессом.
Представляет собой емкость, сваренную из листовой нержавеющей стали. Емкость для сбивания маслоизготовителя представляет собой, либо горизонтальный барабан, либо барабан с наклоном для увеличения эффективности сбивания. Маслоизготовитель снабжен пультом управления.
Ванна самопрессования творога, двухслойная U-образная емкость с рубашкой обогрева ТЭНами или под барботаж паром- на выбор, с сеткой для отделения сыворотки, со сливом сыворотки 200-1500л, из пищевой нержавеющей стали, рама Ст3, Пульт управления (пылевлагозащищенный).
Схема устройства твороженной ванны
Рекомендуем пищевое оборудование:
| Вакуумный реактор | Вакуумно-выпарная установка | Вакуумная емкость | Диссольвер |
|
![]() |
![]() |
![]() |
| Автоклав | Биореактор | Ферментатор | Емкости из н/стали |
![]() |
![]() |
![]() |
![]() |
| Пищевой насос | Гомогенизатор | Варочный котел | Сироповарочеый котел |
|
![]() |
![]() |
![]() |
| Установки смешения | Жиротопка | Вакуумный миксер гомогенизатор | Смесители сыпучих материалов |
|
![]() |
![]() |
![]() |
| Вакуумный куттер | Ванна пастеризации | Ванна твороженная | Ванна сыродельная |
|
![]() |
![]() |
![]() |
| Сироповарка | Смеситель пьяная бочка | Смеситель ленточный | Смеситель лопастной |
|
![]() |
![]() |
![]() |
| Колероварочный котел | Дражировочная машина | Темперирующая емкость | Диспергатор |
|
![]() |
![]() |
![]() |



























